ABOUT ME

-

Today
-
Yesterday
-
Total
-
  • 창고관리 29. 대규모 온도 습도 관리
    카테고리 없음 2022. 5. 7. 19:17

     

    리뉴얼, 시설 및 설비 구축 트러스트 원스톱 토탈 서비스!

     

    안녕하세요 물류센터 리뉴얼 전문기업 트러스트에이엔씨입니다~!

    29번째 스토리의 고객사는 국내 유수의약품 유통 전문기업으로 KGSP 인증 후 의약품 보관을 위해 트러스트를 찾아주셨습니다. 약 2,000PY 면적의 물류센터를 4구역으로 나눠 각기 다른 온도조건을 적용한다. 계획 자체는 정말 간단한 공사입니다.후후후, 그런데!! 물류센터를 4개 구역으로 리모델링하는 과정에서 방화구역이 변경되었고 대수선 공사에 해당되어 인허가와 신고 업무까지 추가된 상황입니다. 대수선이라고 하면… 건축에 필적하는 허가 과정이 필요한데 단순 리모델링으로 가볍게 생각했는데 건축 허가가 필요한 거야? 고객사 입장에서는 다소 곤란한 상황이었지만 물류센터 리모델링 전문기업 트러스트답게 인허가부터 빨리 풀어가겠습니다, , , , , , , , , , , , , , , , , , , , , , , , , , , , , , , , , , , , , , , , , , , , , , , , , , , , , , , , , , , , , , , , , , , ,

    항온항습창고ㅣiso 조감도 29th TrustStory 온도습도관리 물류센터 대수선 리모델링 공사 트러스트는 경쟁력입니다!

    공사내용(7,200m2)

    실구획칸막이공사(대수선인허가, 방화구획변경) 패널공사(사무실시설공사, 유통가공장시설공사) 항온항습공사 - 온도조건(15~25℃), 습도조건(30~70%) 팔레트랙공사 - 일반 PLT랙 기계소방공사 - 스프링쿨러 기타 - 철거 및 가설공사, 안전라인 마킹, 지게차보호대 설치, 독슬로프 제작설치

     

     

    방화구획 변경에 따른 대수선 인허가를 시작으로 팔레트 트럭, 패널, 온도습도관리설비, 소방공사, 전기공사를 통해 온도관리창고로 리모델링할 예정입니다.고객님께서 쾌적하고 효율적으로 물류센터를 이용하실 수 있다면 대수선도 마다하지 않는 설계를 제안드리지만 한번 리모델링하시면 10년 이상 편하게 사용하시기 때문에 자가창고의 경우 용도변경 시 설계검토나 구조검토 등 확인해야 할 사항도 정말 많습니다.2,000평이 넘는 대규모 물류센터 전체를 관리할 수 있도록 온습도 중앙제어, 자동제어 시스템에 더해 물류시설과 설비까지 원스톱으로 배치할 예정입니다.

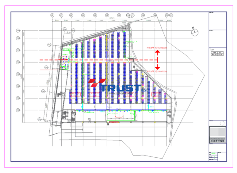
    항온항습창고ㅣ설계도면

     

    대수선 인허가(방화구획변경) 화주사에서 입주하는 물류센터는 그동안 방화구획 완화 기준이 적용되었습니다.그러나 화주사가 입주하여 창고 내부에 칸막이 공사가 불가피하여 불법 요소를 제거하기 위하여 대수선 공사를 감행하였습니다. 최근 적용되는 건축법, 소방법을 검토하고 있기 때문에 위법 사항 없이 운영될 수 있도록 인허가부터 하나하나 풀어가겠습니다.

    항온항습창고ㅣ방화구획 변경

     

    온습도관리구역 전실 조성 덕과 물류센터 사이에 전실을 조성하면 외기의 영향을 줄일 수 있기 때문에 온도습도관리 물류센터에서 그 역할이 중요합니다. 물류선, 방화구역, 물류시설이 모두 적법하게 조화를 이루도록 전실을 조성했습니다.

    항온항습창고ㅣ전실

     

    1구역 정온창고(온도조건 5도~25도 습도조건 30~70%) 약 7200m2 규모의 팔레트 트럭 물류센터는 4구역으로 나뉘며 각기 다른 온도관리 기준을 따르게 됩니다.관리구역을 나누는 과정에서 방화구획이 변경되었는데 이는 대수선에 해당하므로 인허가 허가/신고를 시작으로 방화셔터, 스프링클러 등 소방법에 맞는 시설공사가 이루어질 예정입니다.

    항온항습창고ㅣ온도관리구역1

     

    2구역 항온항습창고(온도조건 5도~15도, 습도조건 30~60%) 온도관리구역의 층고가 높고 면적이 넓기 때문에 공조설비의 배치에 의해 사업비가 크게 좌우되는 프로젝트입니다. 가격을 너무 절약하면 적정 온도 습도를 유지하기 어렵고 과적합하면 사업비와 유지관리비가 증가하는데 이 두 조건이 조화를 이루도록 하는 것이 트러스트만의 노하우라고 할 수 있습니다.

    항온항습창고ㅣ온도관리구역2

    3구역 항온항습(온도조건 15~25도, 습도조건 30~60%) 약 2000평의 대규모 물류센터 전체를 온도관리구역으로 리모델링하기 위해 트러스트 솔루션을 통해 경제적인 시공을 할 예정입니다. 온도습도 관리는 사무실에서 모니터링 할 수 있도록 시스템을 배치하고 중앙제어기술을 적극 도입했습니다. 각각의 항온, 항습창고를 모니터링하고 관리할 수 있어 고객은 보다 효율적으로 물류센터를 운영할 수 있게 됩니다!

    4구역 항온항습(온도조건 15~25도, 습도조건 30~60%) 트러스트 에이엔씨는 KGSP, 의약품 보관물류센터를 전문 리뉴얼하고 있어 센터 상황에 맞게 적법한 솔루션을 적용할 수 있습니다. 특히 이번 프로젝트처럼 방화구획 변경, 대수선, 기계소방공사가 포함될 경우 법적 요소를 놓치지 않도록 전문기술인이 프로젝트에 참여하는 것이 중요합니다.트러스트 에이엔씨는 물류, 건축, 안전 전문가를 보유하고 있으며 리모델링 전반에 걸쳐 법적 사항, 위험 요소를 점검하고 있습니다.

    예정공정계획 리모델링을 위해 물류센터가 빈 상태여서 빠르게 리모델링 진행이 가능할 것으로 보입니다. 이렇게 물류센터 확장 및 이전 시 콜드체인, KGSP, 온습도 관리에 관한 리모델링을 계획하면 운영 기간 동안 보다 효율적으로 센터를 운영할 수 있습니다. 본 현장은 입주일이 임박하여 대수선 인허가 및 공사 상세일정을 패스트트랙으로 공기 단축하고 입주일 리스크클 온도관리구역이 너무 넓은 범위에 실별로 다른 관리조건을 충족하기 위해 보다 세밀한 작업이 필요한 프로젝트로 예상됩니다.

    항온항습창고ㅣ예정공정표

     

     

    온도와 습도 관리 기준을 가지고 있는 물류센터의 리모델링 및 설비 세팅 시 사업비와 위험을 절감할 수 있는 방안을 제시하고 공사까지 원스톱으로 진행한다는 것은 결코 쉬운 일이 아닙니다.물류, 건축, 안전의 각 분야 전문가들이 모여 고객의 물류 경쟁력을 위해 최선을 다할 것을 약속드리며! 의약품 유통 인프라 구축 후 완성된 KGSP 물류센터 솔루션으로 돌아옵니다!

    의약품 물류센터 설비 구축 전문기업 ㈜트러스트에이엔씨는 경쟁력입니다.감사합니다。

    트러스트는 경쟁력입니다.

Designed by Tistory.